WhatsAppa yazın
İndi zəng et
İş vaxtı: həftə içi 09:00-18:00
AZE
ENG
RUS
[email protected]
BAŞ SƏHİFƏ
ŞİRKƏT HAQQINDA
(current)
XİDMƏTLƏR
LAYİHƏLƏR
LAYİHƏLƏR
1 Mərtəbə
2 Mərtəbə
3 Mərtəbə
Mansard
İnteryer
Landşaft
Qeyri yaşayış sahələri
TƏRƏFDAŞLAR
ƏLAQƏ
Müştəri Xidmətləri
(+994 12) 514 39 06
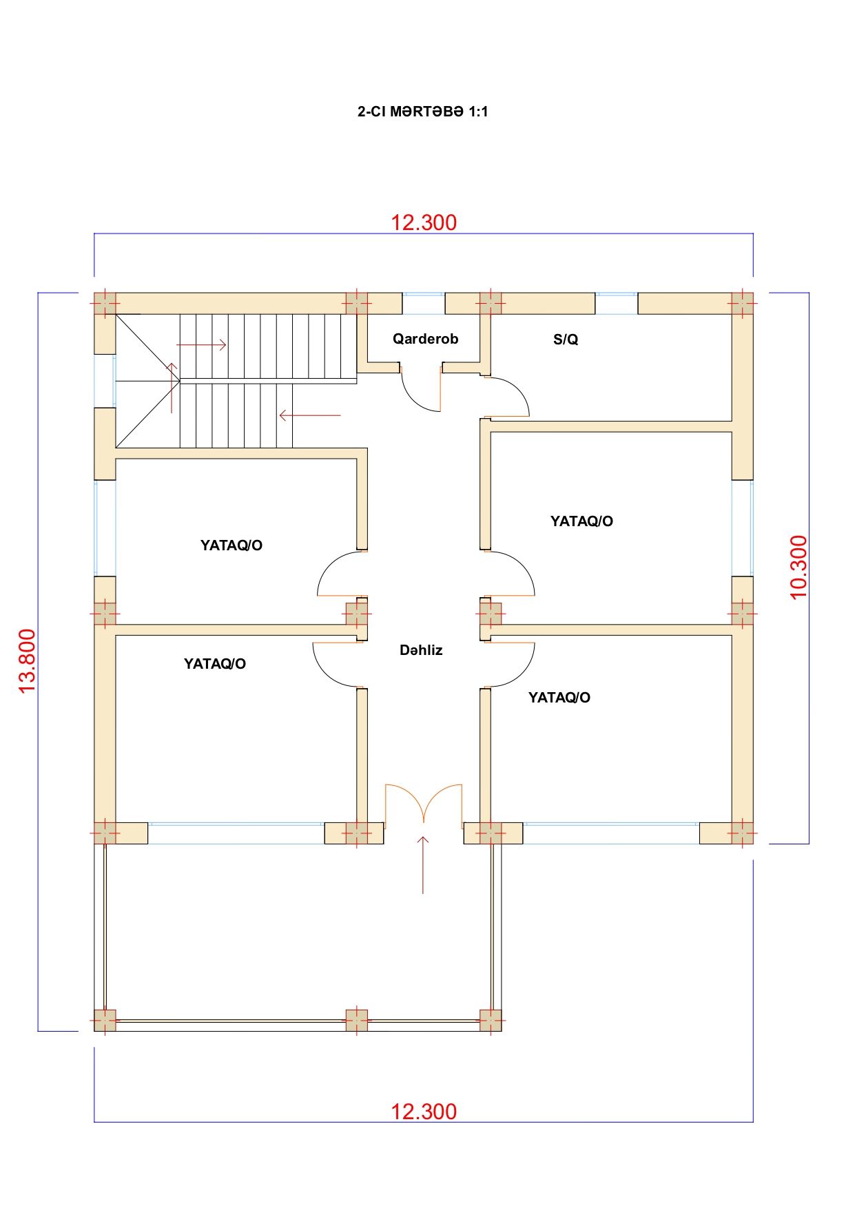
305 m2 2 mərtəbəli yaşayış evi
image 1 of 13
previous
next
close
Layihə ölçüləri
Tikinti sahəsi
305 kv m
Tikinti ölçüləri
12.3x12.8
İndividual layihələndirmə əsasında xəyallarınızdakı tikilini inşa edirik
Tikililərdə yalnız üstün keyfiyyətdə olan materiallar istifadə olunur
Müştəri xidmətlərimizdən bütün suallarınıza cavab tapa bilərsiniz